Skip to content
About Us
Contact Us
Prices
My Account
Log In
Register
Services
About Us
Home Plans
Additional Services
Prices
Contact Us
Commercial & Multifamily
New Homes
Additions & Renovations
Interior Design
Energy
Builder/Developer Planning & Marketing
My Account
Log In
Register
Home Plans
Browse
Occupancy
Stories
Popular Features
CLEAR
Browse
Occupancy
Stories
Other
CLEAR
Simple Search
Advanced Search
Size
Primary
Bedrooms
Bathrooms
Living Area
-
2
nd
Unit
Bedrooms
Bathrooms
Living Area
-
Width
Height
Depth
Garage
Side
Left
Right
Either
Faces
Front
Side
Either
Cars
Plan Readiness
Fast - Tier 1
2-3 Business Days
Pretty Fast - Tier 2
1-2 Weeks
More Time - Tier 3
2-3 Weeks
Drawings TBD - Tier 4
4+ Weeks
Current Lead Times
Collections
April in the Country
April in the Village
Artform Original Bungalows
Artform Signature - Oversized
Artform Signature Bungalows
Artform Signature Gems
Bakery Series
Berry Charming Nuggets
Berry Charming Ranches
Cafe Series
Classy Colonials
Laughing Cottages
Merry Cottages
Mint Duplexes
Savory Cottages
Storybook Cottages
Single-Family
Two Family (Duplex, In-Law)
Multi-Commercial
Garages, Sheds, Poolhouses etc
Include Future Space (unfinished)?
Check to have Search include future living area, baths & bedrooms (such as "bonus" space over the garage).
1 Story - Ranch, Ranch w/Walkup (Incl Splits)
1.5+ Stories - Cape Bungalow, Expanded Cape
2 Stories or More
First Floor Master Suite (and Laundry)
9+ Foot First Floor Ceiling
Second Master Suite
Single-Family
Two Family (Duplex, In-Law)
Multi-Commercial
Garages, Sheds, Poolhouses etc
Include Future Space (unfinished)?
Check to have Search include future living area, baths & bedrooms (such as "bonus" space over the garage).
1 STORY
Ranch
Split Entry Ranch
Ranch w/Walkup
1.5 STORIES
Cape / Bungalow
Expanded Cape
Trilevel (semi-split)
2 OR MORE
Colonial / New Englander
Colonial w/Walkup
3 Story or More
Other
Ceiling Height
1
st
Floor
7'8"
8'0"
8'1" - 8'11"
9'0"
9'1" - 9'11"
10' & Up
Vaulted Space
2
nd
Floor
7'8"
8'0"
8'1" - 8'11"
9'0"
9'1" - 9'11"
10' & Up
Vaulted Space
Basement
7'8"
8'0"
8'1" - 8'11"
9'0"
9'1" - 9'11"
10' & Up
Vaulted Space
Include Possible
Show Details
Accessibility
ADA:
Adaptable
Full
Guest
Master Bedroom:
Ground Floor
2 Masters
1
st
Floor Laundry:
Yes
Elevator:
Possible
Yes or Future
Views from House
Living Room Faces:
Front
Side
Rear
The direction the main living area faces. In some cases some changes to the windows might be appropriate to capture a Side View.
Compliance (Wind & Snow)
Wind
Snow
Found 811 Variations of 375 Designs | Showing
10
15
50
100
Darwin
|
4 Matching Variation(s)
Darwin
829.124.v15 GR
Living
Beds
Baths
Main
2722
FT
4
2.5
Future
2
nd
unit
Plan Details
2
50
Width
32.00
FT
|
Depth
58.16
FT
|
Height
31.91
FT
Darwin
829.124.v14 GR
Living
Beds
Baths
Main
2120
FT
3
3.5
Future
2
nd
unit
Plan Details
2
50
Width
30.00
FT
|
Depth
50.50
FT
|
Height
32.17
FT
Darwin
829.124.v13 GR
Living
Beds
Baths
Main
1951
FT
3
2.5
Future
2
nd
unit
Plan Details
2
65
Width
28.25
FT
|
Depth
48.00
FT
|
Height
31.00
FT
Darwin
829.124.v12 GR
Living
Beds
Baths
Main
2057
FT
3
2.5
Future
2
nd
unit
Plan Details
2
Width
30.00
FT
|
Depth
50.17
FT
|
Height
31.17
FT
Darwin
829.124.v12 GL
Living
Beds
Baths
Main
2057
FT
3
2.5
Future
2
nd
unit
Plan Details
2
Width
30.00
FT
|
Depth
50.17
FT
|
Height
31.17
FT
Button Text
Sir Isaac Newton
|
2 Matching Variation(s)
Sir Isaac Newton
627.124.v15 GL
Living
Beds
Baths
Main
2405
FT
4
2.5
Future
2
nd
unit
Plan Details
2
65
Width
40.00
FT
|
Depth
40.00
FT
|
Height
30.66
FT
Sir Isaac Newton with Sun
627.125.v2 GR
Living
Beds
Baths
Main
2554
FT
4
2.5
Future
1
2
nd
unit
Plan Details
2
50
Width
40.00
FT
|
Depth
52.25
FT
|
Height
30.66
FT
Sir Isaac Newton with Sun
627.125 GL
Living
Beds
Baths
Main
2641
FT
3
2.5
Future
1
0.5
2
nd
unit
Plan Details
3
65
Width
53.00
FT
|
Depth
55.25
FT
|
Height
30.58
FT
Button Text
Walker Duplex
|
1 Matching Variation(s)
Walker Duplex
1115.224.v2
Living
Beds
Baths
Main
2732
FT
4
2.5
Future
2
2
nd
unit
2728
FT
4
2.5
Plan Details
4
50
Width
106.00
FT
|
Depth
50.00
FT
|
Height
34.92
FT
Walker Duplex
1115.224
Living
Beds
Baths
Main
2728
FT
4
2.5
Future
2
2
nd
unit
2726
FT
4
2.5
Plan Details
4
50
Width
106.00
FT
|
Depth
50.00
FT
|
Height
34.92
FT
Button Text
Celeste - 4-Plex
Celeste - 4-Plex
1118.424
Living
Beds
Baths
Main
6470
FT
8
10
Future
1018
FT
4
4
2
nd
unit
Plan Details
4
80
Width
93.92
FT
|
Depth
37.00
FT
|
Height
35.08
FT
Button Text
Sunny Laughing Daffodil
|
3 Matching Variation(s)
Sunny Laughing Daffodil
580.121.v5 GR
Living
Beds
Baths
Main
1781
FT
3
2.5
Future
2
nd
unit
Plan Details
2
50
Width
38.00
FT
|
Depth
34.00
FT
|
Height
32.92
FT
Sunny Laughing Daffodil
580.121.v6 KL
Living
Beds
Baths
Main
1787
FT
3
2.5
Future
1
2
nd
unit
Plan Details
2
90
Width
38.00
FT
|
Depth
34.25
FT
|
Height
33.08
FT
Laughing Daffodil Prime Expanded
580.122.v2 GL
Living
Beds
Baths
Main
2269
FT
4
2.5
Future
1
2
nd
unit
Plan Details
2
Width
46.00
FT
|
Depth
34.30
FT
|
Height
33.92
FT
Laughing Daffodil Prime
580.120.v4 KL
Living
Beds
Baths
Main
1691
FT
3
2.5
Future
1
2
nd
unit
Plan Details
2
Width
30.00
FT
|
Depth
34.25
FT
|
Height
24.33
FT
Button Text
•••
Laughing Cottages
Bowie
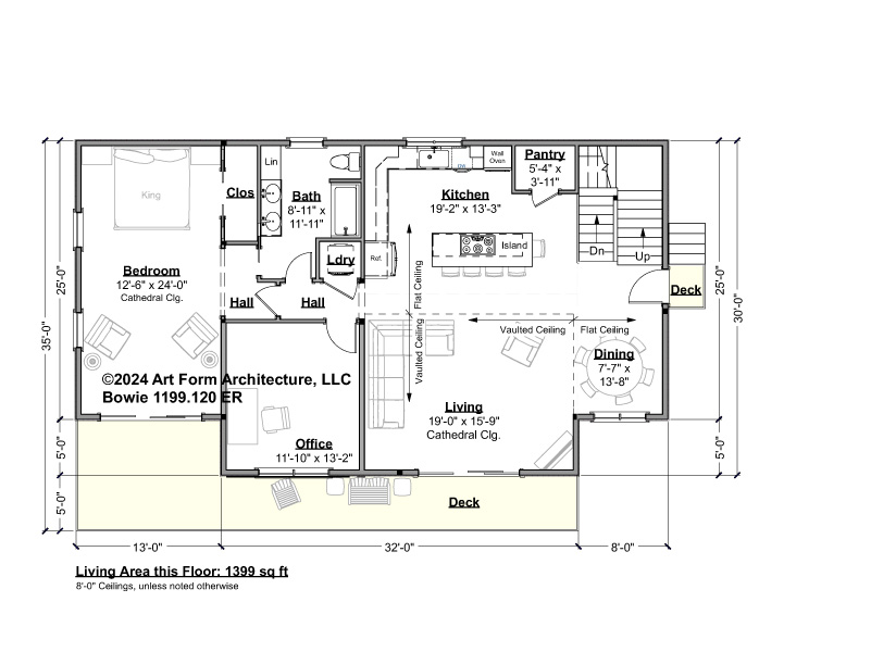
Bowie
1199.120 ER
Living
Beds
Baths
Main
2114
FT
1
1.5
Future
1
2
nd
unit
Plan Details
2
85
Width
53.00
FT
|
Depth
30.00
FT
|
Height
35.16
FT
Button Text
Tarquin Alpha
|
1 Matching Variation(s)
Tarquin Alpha
1112.124.v2 GL
Living
Beds
Baths
Main
2270
FT
3
2.5
Future
1
2
nd
unit
Plan Details
2
50
Width
37.54
FT
|
Depth
43.66
FT
|
Height
33.33
FT
Tarquin Alpha
1112.124 GR
Living
Beds
Baths
Main
2270
FT
3
2.5
Future
2
nd
unit
Plan Details
2
50
Width
37.54
FT
|
Depth
43.66
FT
|
Height
33.42
FT
Button Text
April Yarrow Prime
|
4 Matching Variation(s)
April Yarrow Prime
326.120.v11 GL
Living
Beds
Baths
Main
2032
FT
3
2.5
Future
1
2
nd
unit
Plan Details
2
90
Width
32.00
FT
|
Depth
33.79
FT
|
Height
28.25
FT
April Yarrow Classic
326.124.v6 GL
Living
Beds
Baths
Main
2201
FT
3
2.5
Future
2
2
nd
unit
Plan Details
2
90
Width
54.00
FT
|
Depth
33.75
FT
|
Height
28.42
FT
April Yarrow Classic
326.124.v5 GR
Living
Beds
Baths
Main
2201
FT
3
2.5
Future
2
2
nd
unit
Plan Details
2
50
Width
54.00
FT
|
Depth
33.75
FT
|
Height
28.16
FT
April Yarrow Classic
326.124.v3 GR
Living
Beds
Baths
Main
2201
FT
3
2.5
Future
2
2
nd
unit
Plan Details
2
Width
54.00
FT
|
Depth
33.75
FT
|
Height
28.16
FT
April Yarrow Classic
326.124.v2 GL
Living
Beds
Baths
Main
1893
FT
3
2.5
Future
1
2
nd
unit
Plan Details
2
Width
54.00
FT
|
Depth
33.75
FT
|
Height
28.08
FT
Button Text
•••
April in the Country
Merry Tiger Premier Gold
|
1 Matching Variation(s)
Merry Tiger Premier Gold
563.129.v30 GL
Living
Beds
Baths
Main
2333
FT
3
2.5
Future
2
nd
unit
Plan Details
2
50
Width
50.00
FT
|
Depth
52.00
FT
|
Height
28.58
FT
Merry Tiger Premier Gold
563.129.v22 GR
Living
Beds
Baths
Main
2169
FT
3
2.5
Future
2
nd
unit
Plan Details
2
50
Width
50.00
FT
|
Depth
50.00
FT
|
Height
28.50
FT
Button Text
•••
Merry Cottages
Pharell
|
3 Matching Variation(s)
Pharell
748.144.v8 GR
Living
Beds
Baths
Main
1998
FT
3
2
Future
2
nd
unit
Plan Details
2
50
Width
41.00
FT
|
Depth
70.00
FT
|
Height
23.16
FT
Pharell
748.144.v7 GL
Living
Beds
Baths
Main
1724
FT
2
2
Future
1
2
nd
unit
Plan Details
3
55
Width
51.33
FT
|
Depth
63.33
FT
|
Height
22.75
FT
Pharell
748.144.v7 GR
Living
Beds
Baths
Main
1724
FT
3
2
Future
2
nd
unit
Plan Details
3
60
Width
51.33
FT
|
Depth
63.33
FT
|
Height
23.83
FT
Pharell
748.144.v6 GR
Living
Beds
Baths
Main
1884
FT
2
2
Future
1
2
nd
unit
Plan Details
2
50
Width
38.00
FT
|
Depth
70.00
FT
|
Height
22.42
FT
Button Text
Niall
|
1 Matching Variation(s)
Niall
883.124.v3 GR
Living
Beds
Baths
Main
3399
FT
4
3.5
Future
1444
FT
1
2
nd
unit
Plan Details
2
50
Width
87.00
FT
|
Depth
61.00
FT
|
Height
28.66
FT
Niall
883.124.v2 GR
Living
Beds
Baths
Main
4825
FT
4
3.5
Future
2
2
nd
unit
Plan Details
3
Width
87.00
FT
|
Depth
76.50
FT
|
Height
29.33
FT
Button Text
Garnet Premier
|
3 Matching Variation(s)
Garnet Premier
384.129.v36 GL
Living
Beds
Baths
Main
3232
FT
3
3.5
Future
1
2
nd
unit
Plan Details
3
50
Width
81.00
FT
|
Depth
49.75
FT
|
Height
24.75
FT
Garnet Premier
384.129.v34 GR
Living
Beds
Baths
Main
2819
FT
3
2.5
Future
1
2
nd
unit
Plan Details
2
60
Width
54.00
FT
|
Depth
49.75
FT
|
Height
24.75
FT
Garnet Premier
384.129.v33 GR
Living
Beds
Baths
Main
2397
FT
3
2.5
Future
406
FT
2
2
nd
unit
Plan Details
2
50
Width
50.00
FT
|
Depth
52.00
FT
|
Height
25.00
FT
Garnet Premier
384.129.v20 GL
Living
Beds
Baths
Main
2813
FT
3
2.5
Future
1
2
nd
unit
Plan Details
2
60
Width
52.00
FT
|
Depth
49.75
FT
|
Height
25.75
FT
Button Text
A Calm Retreat
A Calm Retreat
027.124 GL
Living
Beds
Baths
Main
2453
FT
3
2
Future
1
2
nd
unit
Plan Details
2
Width
74.00
FT
|
Depth
72.75
FT
|
Height
25.42
FT
Button Text
Aurelia
|
3 Matching Variation(s)
Aurelia
934.126.v11 GR
Living
Beds
Baths
Main
2274
FT
3
2.5
Future
1
2
nd
unit
Plan Details
2
50
Width
40.00
FT
|
Depth
40.00
FT
|
Height
33.25
FT
Aurelia
934.126.v5 GR
Living
Beds
Baths
Main
2303
FT
3
2.5
Future
1
2
nd
unit
Plan Details
2
Width
42.00
FT
|
Depth
40.00
FT
|
Height
32.42
FT
Aurelia
934.126.v4 GL
Living
Beds
Baths
Main
2317
FT
3
2.5
Future
2
nd
unit
Plan Details
2
Width
42.00
FT
|
Depth
40.00
FT
|
Height
32.42
FT
Aurelia
934.126.v3 GL
Living
Beds
Baths
Main
2302
FT
3
2.5
Future
1
2
nd
unit
Plan Details
2
Width
42.00
FT
|
Depth
40.00
FT
|
Height
32.50
FT
Button Text
Sweet Peekaboo Duplex
|
5 Matching Variation(s)
Sweet Peekaboo Duplex
418.224
Living
Beds
Baths
Main
2172
FT
4
2.5
Future
2
nd
unit
2173
FT
4
2.5
Plan Details
4
50
Width
79.75
FT
|
Depth
38.25
FT
|
Height
26.75
FT
Sweet Peekaboo
418.124.v15 GR
Living
Beds
Baths
Main
2131
FT
3
2.5
Future
2
nd
unit
Plan Details
2
70
Width
40.00
FT
|
Depth
38.25
FT
|
Height
26.92
FT
Sweet Peekaboo
418.124.v15 GL
Living
Beds
Baths
Main
2131
FT
3
2.5
Future
2
nd
unit
Plan Details
2
70
Width
40.00
FT
|
Depth
38.25
FT
|
Height
26.92
FT
Sweet Peekaboo
418.124.v12 GR
Living
Beds
Baths
Main
2123
FT
3
2.5
Future
2
nd
unit
Plan Details
2
Width
40.00
FT
|
Depth
38.25
FT
|
Height
26.76
FT
Sweet Peekaboo
418.124.v11 GR
Living
Beds
Baths
Main
2061
FT
3
2.5
Future
2
nd
unit
Plan Details
2
Width
40.00
FT
|
Depth
38.40
FT
|
Height
25.66
FT
Sweet Peekaboo
418.124.v6 GL
Living
Beds
Baths
Main
2061
FT
3
2.5
Future
2
nd
unit
Plan Details
2
Width
40.00
FT
|
Depth
38.29
FT
|
Height
25.58
FT
Button Text
«
1
…
6
7
8
9
10
…
25
»
Go to Top