Skip to content
About Us
Contact Us
Prices
My Account
Log In
Register
Services
About Us
Home Plans
Additional Services
Prices
Contact Us
Commercial & Multifamily
New Homes
Additions & Renovations
Interior Design
Energy
Builder/Developer Planning & Marketing
My Account
Log In
Register
Home Plans
Browse
Occupancy
Stories
Popular Features
CLEAR
Browse
Occupancy
Stories
Other
CLEAR
Simple Search
Advanced Search
Size
Primary
Bedrooms
Bathrooms
Living Area
-
2
nd
Unit
Bedrooms
Bathrooms
Living Area
-
Width
Height
Depth
Garage
Side
Left
Right
Either
Faces
Front
Side
Either
Cars
Plan Readiness
Fast - Tier 1
2-3 Business Days
Pretty Fast - Tier 2
1-2 Weeks
More Time - Tier 3
2-3 Weeks
Drawings TBD - Tier 4
4+ Weeks
Current Lead Times
Collections
April in the Country
April in the Village
Artform Original Bungalows
Artform Signature - Oversized
Artform Signature Bungalows
Artform Signature Gems
Bakery Series
Berry Charming Nuggets
Berry Charming Ranches
Cafe Series
Classy Colonials
Laughing Cottages
Merry Cottages
Mint Duplexes
Savory Cottages
Storybook Cottages
Single-Family
Two Family (Duplex, In-Law)
Multi-Commercial
Garages, Sheds, Poolhouses etc
Include Future Space (unfinished)?
Check to have Search include future living area, baths & bedrooms (such as "bonus" space over the garage).
1 Story - Ranch, Ranch w/Walkup (Incl Splits)
1.5+ Stories - Cape Bungalow, Expanded Cape
2 Stories or More
First Floor Master Suite (and Laundry)
9+ Foot First Floor Ceiling
Second Master Suite
Single-Family
Two Family (Duplex, In-Law)
Multi-Commercial
Garages, Sheds, Poolhouses etc
Include Future Space (unfinished)?
Check to have Search include future living area, baths & bedrooms (such as "bonus" space over the garage).
1 STORY
Ranch
Split Entry Ranch
Ranch w/Walkup
1.5 STORIES
Cape / Bungalow
Expanded Cape
Trilevel (semi-split)
2 OR MORE
Colonial / New Englander
Colonial w/Walkup
3 Story or More
Other
Ceiling Height
1
st
Floor
7'8"
8'0"
8'1" - 8'11"
9'0"
9'1" - 9'11"
10' & Up
Vaulted Space
2
nd
Floor
7'8"
8'0"
8'1" - 8'11"
9'0"
9'1" - 9'11"
10' & Up
Vaulted Space
Basement
7'8"
8'0"
8'1" - 8'11"
9'0"
9'1" - 9'11"
10' & Up
Vaulted Space
Include Possible
Show Details
Accessibility
ADA:
Adaptable
Full
Guest
Master Bedroom:
Ground Floor
2 Masters
1
st
Floor Laundry:
Yes
Elevator:
Possible
Yes or Future
Views from House
Living Room Faces:
Front
Side
Rear
The direction the main living area faces. In some cases some changes to the windows might be appropriate to capture a Side View.
Compliance (Wind & Snow)
Wind
Snow
Found 824 Variations of 380 Designs | Showing
10
15
50
100
Shaina
|
3 Matching Variation(s)
Shaina
1104.144.v6 GR
Living
Beds
Baths
Main
1451
FT
3
2
Future
2
nd
unit
Plan Details
2
60
Width
51.00
FT
|
Depth
43.42
FT
|
Height
22.33
FT
Shaina
1104.144.v4 GR
Living
Beds
Baths
Main
1400
FT
3
2
Future
2
nd
unit
Plan Details
2
60
Width
48.00
FT
|
Depth
42.33
FT
|
Height
22.33
FT
Shaina
1104.144.v4 GL
Living
Beds
Baths
Main
1400
FT
3
2
Future
2
nd
unit
Plan Details
2
Width
48.00
FT
|
Depth
42.33
FT
|
Height
22.33
FT
Shaina
1104.144.v2 GL
Living
Beds
Baths
Main
1430
FT
3
2
Future
2
nd
unit
Plan Details
2
60
Width
48.00
FT
|
Depth
42.33
FT
|
Height
22.33
FT
Button Text
Opal Marquise Classic, 30x28
|
4 Matching Variation(s)
Opal Marquise Classic, 30x28
370.124.v23 GR
Living
Beds
Baths
Main
2093
FT
3
2.5
Future
1
2
nd
unit
Plan Details
2
55
Width
54.00
FT
|
Depth
30.33
FT
|
Height
26.25
FT
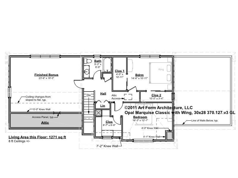
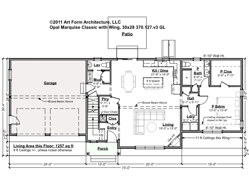
Opal Marquise Classic with Wing, 30x28
370.127.v3 GL
Living
Beds
Baths
Main
2528
FT
3
2.5
Future
1
2
nd
unit
Plan Details
2
50
Width
73.00
FT
|
Depth
30.33
FT
|
Height
27.25
FT
Opal Marquise Classic, 30x28
370.124.v23 GL
Living
Beds
Baths
Main
2093
FT
3
2.5
Future
2
2
nd
unit
Plan Details
2
80
Width
54.00
FT
|
Depth
30.33
FT
|
Height
26.58
FT
Opal Marquise Classic, 30x28
370.124.v22 GL
Living
Beds
Baths
Main
2103
FT
3
2.5
Future
2
2
nd
unit
Plan Details
2
65
Width
54.00
FT
|
Depth
30.33
FT
|
Height
26.33
FT
Opal Marquise Prime with Sun
370.121 GR
Living
Beds
Baths
Main
1711
FT
3
2.5
Future
1
2
nd
unit
Plan Details
2
55
Width
28.00
FT
|
Depth
42.83
FT
|
Height
25.83
FT
Button Text
Bonnie Ranch
|
4 Matching Variation(s)
Bonnie Ranch
679.124.v55 GL
Living
Beds
Baths
Main
1963
FT
3
2
Future
2
nd
unit
Plan Details
3
55
Width
80.00
FT
|
Depth
48.00
FT
|
Height
24.42
FT
Bonnie Ranch
679.124.v54 GL
Living
Beds
Baths
Main
1965
FT
3
2
Future
2
nd
unit
Plan Details
2
60
Width
68.00
FT
|
Depth
56.00
FT
|
Height
21.75
FT
Bonnie Ranch
679.124.v51 GL
Living
Beds
Baths
Main
1965
FT
3
2
Future
2
nd
unit
Plan Details
2
65
Width
68.00
FT
|
Depth
56.00
FT
|
Height
21.75
FT
Bonnie Ranch
679.124.v49 GR
Living
Beds
Baths
Main
2061
FT
3
2
Future
2
nd
unit
Plan Details
2
50
Width
72.00
FT
|
Depth
58.00
FT
|
Height
21.75
FT
Bonnie Ranch
679.124.v41 GL
Living
Beds
Baths
Main
2053
FT
3
2
Future
2
nd
unit
Plan Details
2
55
Width
68.00
FT
|
Depth
58.00
FT
|
Height
21.66
FT
Button Text
Shelley with Sun
|
2 Matching Variation(s)
Shelley with Sun
874.125.v8 GR
Living
Beds
Baths
Main
3004
FT
4
3.5
Future
1
2
nd
unit
Plan Details
2
55
Width
40.00
FT
|
Depth
64.00
FT
|
Height
34.42
FT
Shelley with Sun
874.125.v7 GL
Living
Beds
Baths
Main
3157
FT
4
3.5
Future
2
nd
unit
Plan Details
2
50
Width
45.00
FT
|
Depth
55.00
FT
|
Height
34.16
FT
Shelley with Sun
874.125.v2 GR
Living
Beds
Baths
Main
2636
FT
4
3.5
Future
1
2
nd
unit
Plan Details
2
55
Width
40.00
FT
|
Depth
52.00
FT
|
Height
33.08
FT
Button Text
Emerald Sea Classic with Wing, 32x30
|
7 Matching Variation(s)
Emerald Sea Classic with Wing, 32x30
320.127.v20 GR
Living
Beds
Baths
Main
2897
FT
3
2.5
Future
1
2
nd
unit
Plan Details
3
60
Width
84.00
FT
|
Depth
36.25
FT
|
Height
29.16
FT
Emerald Sea Premier
320.129.v9 GR
Living
Beds
Baths
Main
2769
FT
4
3.5
Future
1
2
nd
unit
Plan Details
2
80
Width
54.00
FT
|
Depth
51.25
FT
|
Height
29.16
FT
Emerald Sea Classic with In-Law
320.127.v18 GL
Living
Beds
Baths
Main
2260
FT
3
2.5
Future
1
2
nd
unit
587
FT
1
1
Plan Details
2
90
Width
78.00
FT
|
Depth
36.25
FT
|
Height
29.50
FT
Emerald Sea Classic
320.124.v6 GL
Living
Beds
Baths
Main
2259
FT
3
2.5
Future
1
2
nd
unit
Plan Details
2
85
Width
54.00
FT
|
Depth
36.25
FT
|
Height
0.00
FT
Emerald Sea Classic
320.124.v5 GR
Living
Beds
Baths
Main
2344
FT
3
2.5
Future
1
2
nd
unit
Plan Details
2
50
Width
55.00
FT
|
Depth
36.25
FT
|
Height
28.29
FT
Emerald Sea Classic with Wing, 32x30
320.127.v17 GR
Living
Beds
Baths
Main
2990
FT
3
2.5
Future
2
2
nd
unit
Plan Details
2
50
Width
70.00
FT
|
Depth
36.25
FT
|
Height
29.17
FT
Emerald Sea Classic, 32x30
320.124.v4 GR
Living
Beds
Baths
Main
2563
FT
3
2.5
Future
1
2
nd
unit
Plan Details
2
50
Width
60.00
FT
|
Depth
36.25
FT
|
Height
28.08
FT
Emerald Sea Classic with Wing
320.127.v13 GR
Living
Beds
Baths
Main
2595
FT
4
3.5
Future
1
2
nd
unit
Plan Details
2
50
Width
68.00
FT
|
Depth
36.25
FT
|
Height
29.16
FT
Button Text
•••
Artform Signature - Oversized
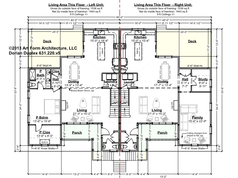
Dorian Duplex
Dorian Duplex
631.220.v5
Living
Beds
Baths
Main
2624
FT
3
2.5
Future
2
nd
unit
2835
FT
3
2.5
Plan Details
4
50
Width
80.00
FT
|
Depth
53.50
FT
|
Height
35.79
FT
Button Text
Markey Prime w/ In-Law
|
4 Matching Variation(s)
Markey Prime w/ In-Law
429.500.v4 EL
Living
Beds
Baths
Main
1792
FT
3
1.5
Future
2
nd
unit
624
FT
1
1
Plan Details
60
Width
66.00
FT
|
Depth
36.00
FT
|
Height
30.83
FT
Markey Prime
429.500.v3 EL
Living
Beds
Baths
Main
1792
FT
3
2.5
Future
2
nd
unit
Plan Details
Width
32.50
FT
|
Depth
36.00
FT
|
Height
30.83
FT
Markey Prime
429.120.v3 SR
Living
Beds
Baths
Main
1568
FT
3
2.5
Future
2
nd
unit
Plan Details
Width
28.00
FT
|
Depth
32.00
FT
|
Height
30.67
FT
Markey Prime
429.120.v2 SL
Living
Beds
Baths
Main
1568
FT
3
2.5
Future
2
nd
unit
Plan Details
2
Width
28.00
FT
|
Depth
32.00
FT
|
Height
31.17
FT
Markey Prime
429.120.v2 SR
Living
Beds
Baths
Main
1568
FT
3
2.5
Future
2
nd
unit
Plan Details
2
Width
28.00
FT
|
Depth
32.00
FT
|
Height
30.92
FT
Button Text
Ben Bradley Classic, 34x40
|
3 Matching Variation(s)
Ben Bradley Classic, 34x40
990.124.v6 GL
Living
Beds
Baths
Main
1988
FT
3
2.5
Future
2
nd
unit
Plan Details
2
50
Width
34.00
FT
|
Depth
40.00
FT
|
Height
27.50
FT
Ben Bradley Classic, 34x40
990.124.v6 GR
Living
Beds
Baths
Main
1988
FT
3
2.5
Future
2
nd
unit
Plan Details
2
50
Width
34.00
FT
|
Depth
40.00
FT
|
Height
27.75
FT
Ben Bradley Classic Duplex
990.224.v5
Living
Beds
Baths
Main
2226
FT
3
2.5
Future
2
nd
unit
2226
FT
3
2.5
Plan Details
4
50
Width
75.75
FT
|
Depth
46.00
FT
|
Height
27.41
FT
Ben Bradley Classic
990.124.v4 GR
Living
Beds
Baths
Main
2096
FT
3
2.5
Future
2
nd
unit
Plan Details
2
50
Width
36.00
FT
|
Depth
42.00
FT
|
Height
27.42
FT
Button Text
Graham Classic with In-Law
Graham Classic with In-Law
1208.500
Living
Beds
Baths
Main
2389
FT
3
2.5
Future
205
FT
1
2
nd
unit
1000
FT
2
1.5
Plan Details
3
50
Width
84.00
FT
|
Depth
54.00
FT
|
Height
24.75
FT
Button Text
Oscar
Oscar
229.124 GL
Living
Beds
Baths
Main
2613
FT
4
3
Future
550
FT
2
2
nd
unit
Plan Details
2
Width
68.00
FT
|
Depth
39.00
FT
|
Height
0.00
FT
Button Text
Zelda
Zelda
112.127 GR
Living
Beds
Baths
Main
2884
FT
4
2.5
Future
2
nd
unit
Plan Details
2
Width
62.00
FT
|
Depth
58.00
FT
|
Height
26.75
FT
Button Text
Alexander Premier
|
10 Matching Variation(s)
Alexander Premier
449.129 GL
Living
Beds
Baths
Main
3038
FT
4
3.5
Future
386
FT
2
2
nd
unit
Plan Details
2
Width
69.00
FT
|
Depth
52.16
FT
|
Height
33.50
FT
Alexander Classic with Sun
449.125 GL
Living
Beds
Baths
Main
3575
FT
5
3.5
Future
1
1
2
nd
unit
Plan Details
2
50
Width
72.00
FT
|
Depth
51.66
FT
|
Height
34.33
FT
Alexander Classic
449.124.v61 GL
Living
Beds
Baths
Main
2987
FT
4
2.5
Future
1
2
nd
unit
Plan Details
3
65
Width
78.00
FT
|
Depth
48.16
FT
|
Height
34.16
FT
Alexander Classic with In-Law
449.124.v60 GL
Living
Beds
Baths
Main
2987
FT
4
2.5
Future
2
2
nd
unit
741
FT
1
1
Plan Details
3
50
Width
78.00
FT
|
Depth
62.16
FT
|
Height
33.42
FT
Alexander Prime
449.120.v9 GR
Living
Beds
Baths
Main
2669
FT
4
2.5
Future
1
2
nd
unit
Plan Details
2
50
Width
46.00
FT
|
Depth
32.00
FT
|
Height
34.08
FT
Alexander Classic
449.124.v48 GL
Living
Beds
Baths
Main
2987
FT
4
2.5
Future
2
2
nd
unit
Plan Details
2
50
Width
66.00
FT
|
Depth
48.16
FT
|
Height
34.00
FT
Alexander Prime
449.120.v2 GR
Living
Beds
Baths
Main
2499
FT
4
2.5
Future
2
nd
unit
Plan Details
2
65
Width
46.00
FT
|
Depth
32.00
FT
|
Height
34.08
FT
Alexander Classic
449.124.v44 GL
Living
Beds
Baths
Main
2983
FT
4
3
Future
2
2
nd
unit
Plan Details
2
50
Width
66.00
FT
|
Depth
36.17
FT
|
Height
33.50
FT
Alexander Prime
449.120.v8 GL
Living
Beds
Baths
Main
2510
FT
4
2.5
Future
1
2
nd
unit
Plan Details
2
55
Width
46.00
FT
|
Depth
32.00
FT
|
Height
34.08
FT
Alexander Prime Expanded
449.122.v10 GR
Living
Beds
Baths
Main
2886
FT
3
2.5
Future
362
FT
3
2
nd
unit
Plan Details
2
50
Width
62.00
FT
|
Depth
38.00
FT
|
Height
32.00
FT
Alexander - Mountain Version
449.124.v36 GR
Living
Beds
Baths
Main
2814
FT
4
2.5
Future
2
nd
unit
Plan Details
2
Width
72.50
FT
|
Depth
37.66
FT
|
Height
36.00
FT
Button Text
Carbonara Classic with Wing
|
4 Matching Variation(s)
Carbonara Classic with Wing
1027.127.v3 GL
Living
Beds
Baths
Main
2876
FT
3
2.5
Future
1
2
nd
unit
Plan Details
2
50
Width
78.00
FT
|
Depth
31.00
FT
|
Height
26.16
FT
Carbonara Classic with Wing
1027.127.v4 GR
Living
Beds
Baths
Main
2758
FT
3
2.5
Future
2
nd
unit
Plan Details
2
50
Width
73.00
FT
|
Depth
31.00
FT
|
Height
26.16
FT
Carbonara Delux
1027.130.v2 GR
Living
Beds
Baths
Main
2510
FT
4
2.5
Future
678
FT
1
2
nd
unit
Plan Details
3
50
Width
85.00
FT
|
Depth
47.00
FT
|
Height
26.16
FT
Carbonara Delux
1027.130 GR
Living
Beds
Baths
Main
2500
FT
4
2.5
Future
678
FT
2
2
nd
unit
Plan Details
2
50
Width
73.00
FT
|
Depth
47.00
FT
|
Height
26.16
FT
Carbonara Delux
1027.130 GL
Living
Beds
Baths
Main
2507
FT
4
2.5
Future
675
FT
1
2
nd
unit
Plan Details
2
50
Width
73.00
FT
|
Depth
47.00
FT
|
Height
26.16
FT
Button Text
•••
Savory Cottages
Cappuccino, 56x37
|
4 Matching Variation(s)
Cappuccino, 56x37
1040.124.v15 GR
Living
Beds
Baths
Main
2348
FT
3
2.5
Future
2
nd
unit
Plan Details
2
50
Width
56.00
FT
|
Depth
37.00
FT
|
Height
25.66
FT
Cappuccino
1040.124.v11 GR
Living
Beds
Baths
Main
1998
FT
3
2.5
Future
2
nd
unit
Plan Details
2
65
Width
48.00
FT
|
Depth
38.00
FT
|
Height
25.58
FT
Cappuccino
1040.124.v13 GL
Living
Beds
Baths
Main
1998
FT
3
2.5
Future
2
nd
unit
Plan Details
2
65
Width
48.00
FT
|
Depth
38.00
FT
|
Height
25.66
FT
Cappuccino
1040.124.v8 GR
Living
Beds
Baths
Main
2191
FT
3
2.5
Future
2
nd
unit
Plan Details
2
Width
49.00
FT
|
Depth
38.00
FT
|
Height
24.58
FT
Cappuccino Classic with Sun
1040.125.v2 GL
Living
Beds
Baths
Main
2359
FT
3
2.5
Future
1
2
nd
unit
Plan Details
2
50
Width
61.00
FT
|
Depth
34.00
FT
|
Height
24.58
FT
Button Text
Bijou Marquise
|
3 Matching Variation(s)
Bijou Marquise
994.124.v4 GL
Living
Beds
Baths
Main
1750
FT
3
2.5
Future
870
FT
1
2
nd
unit
Plan Details
2
70
Width
54.00
FT
|
Depth
32.00
FT
|
Height
27.25
FT
Bijou Marquise
994.124.v2 GL
Living
Beds
Baths
Main
1631
FT
3
2.5
Future
322
FT
1
2
nd
unit
Plan Details
2
50
Width
50.00
FT
|
Depth
32.08
FT
|
Height
27.33
FT
Bijou Marquise
994.120 GL
Living
Beds
Baths
Main
1628
FT
3
2.5
Future
1
2
nd
unit
Plan Details
2
Width
28.00
FT
|
Depth
32.08
FT
|
Height
27.25
FT
Bijou Marquise
994.124 GL
Living
Beds
Baths
Main
1631
FT
3
2.5
Future
322
FT
1
2
nd
unit
Plan Details
2
Width
50.00
FT
|
Depth
32.08
FT
|
Height
27.33
FT
Button Text
«
1
2
3
4
…
26
»
Go to Top