Back to Search
Process & Billing
License to Build
CONSTRUCTION DRAWINGS
$3,400.00
Changes
Major
$850.00
Minor
$340.00
Price Breakdown:
H7 | Tier 1
Current Lead Times
Base Price
$3,400.00
Builder Re-Use
$1,700.00
Process & Billing
© 2011 Art Form Architecture, LLC. ALL RIGHTS RESERVED.
ATTENTION: ALL IMAGES AND CONTENT ON THIS WEB SITE ARE PROTECTED UNDER UNITED STATES LAW, INTERNATIONAL COPYRIGHT LAWS AND TREATIES, WHICH PROVIDE SUBSTANTIAL PENALTIES FOR INFRINGEMENT. THE USE OF ANY IMAGES, DESIGNS OR OTHER CONTENT, IN WHOLE OR PART, FOR ANY PURPOSE, INCLUDING, BUT NOT LIMITED TO, REPRODUCTION, STORAGE, MANIPULATION, DIGITAL OR OTHERWISE, IS EXPRESSLY PROHIBITED WITHOUT THE WRITTEN PERMISSION OF Art Form Architecture, LLC.
88.00 FT
44.00 FT
29.50 FT
Living Area
3907 FT
Main
3907 FT
Future
0 FT
2nd Unit
0 FT
Bedrooms
6
Main
4
Future
2
2nd Unit
0
Bathrooms
2.5
Main
2.5
Future
0
2nd Unit
0
1st Floor Plan
2nd Floor Plan
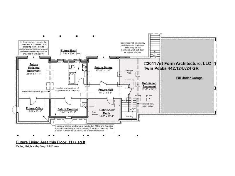
Basement Floor Plan
Note: finished basement area is NOT included in main or future Living Area, but IS shown on CDs.
We do this so Search doesn’t mislead.






